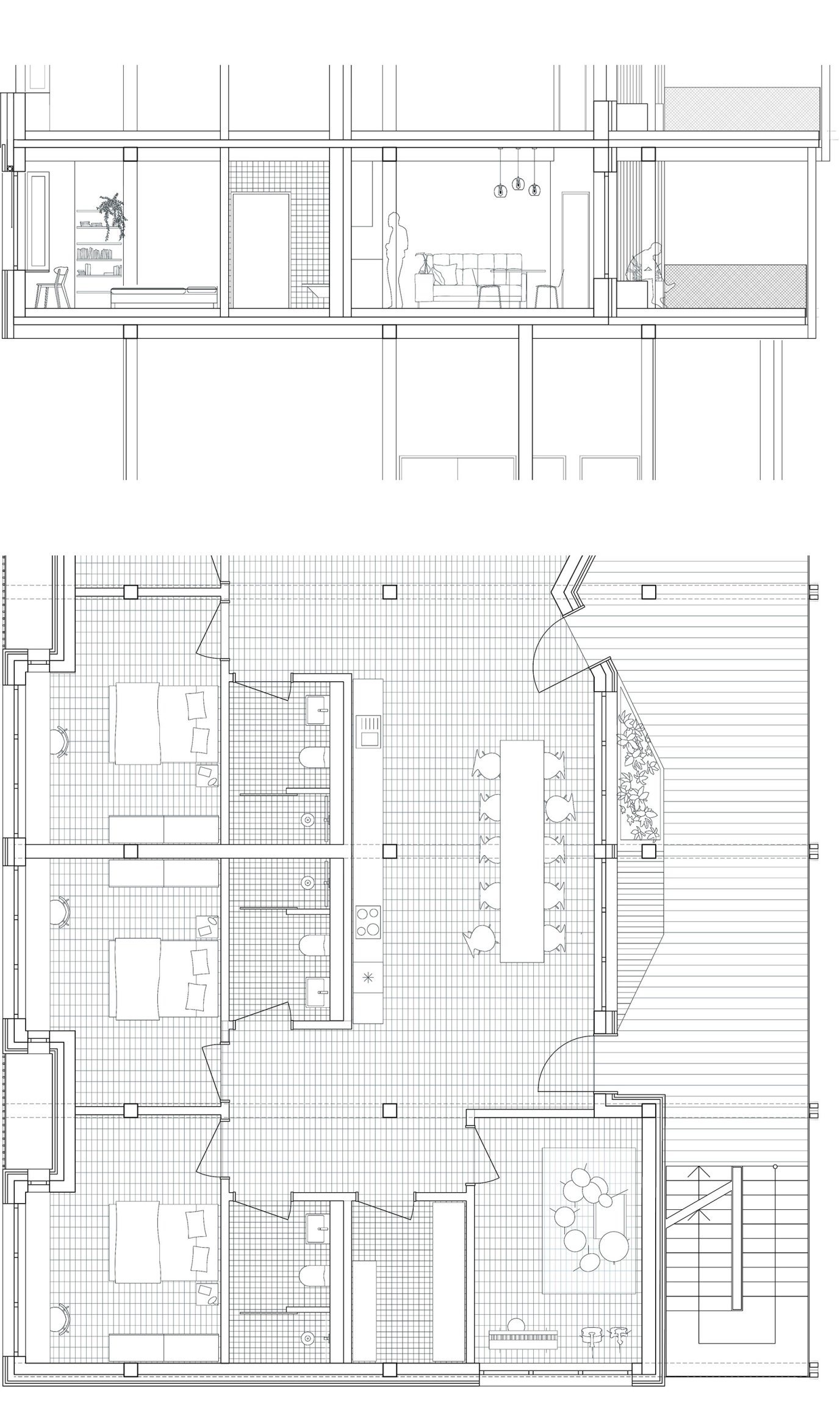
réusine, Biel-Bienne
réusine, Biel-Bienne
Aktuell
Projekte
Professuren
Forschung
Master
International
Architekturgespräche
Anmeldung fehlgeschlagen
Anmeldung temporär blockiert. Bitte später erneut versuchen.
Studierende
Tabea Bleher
Teresa Kuchelmeister
Projekt
réusine, Biel-Bienne
Studiengang
Architektur (B.A.)
Professur
Vertr. Prof. Dipl. Arch. FH/SWB Gian Carlo Bosch
Gäste
Jahr
2024