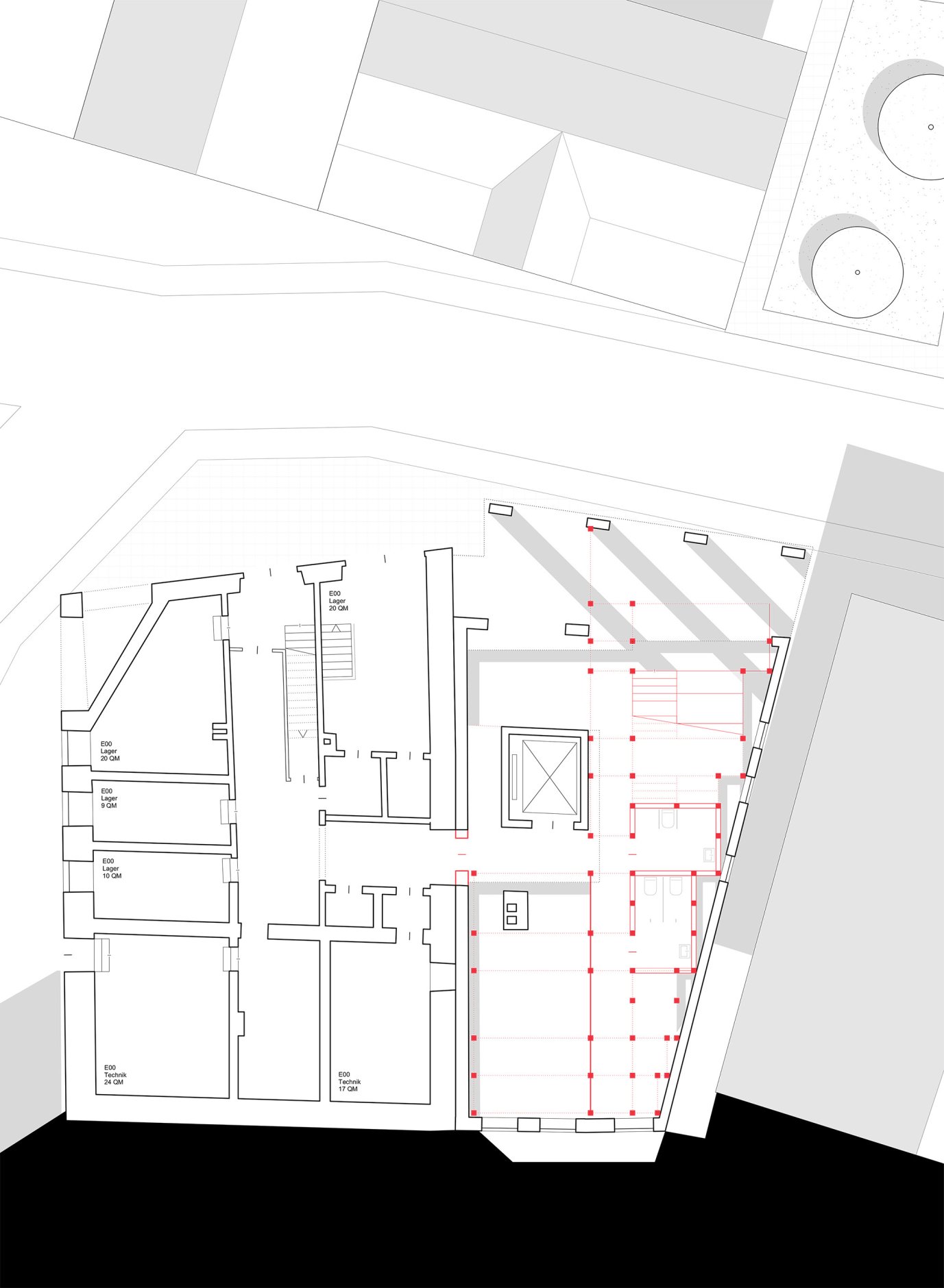
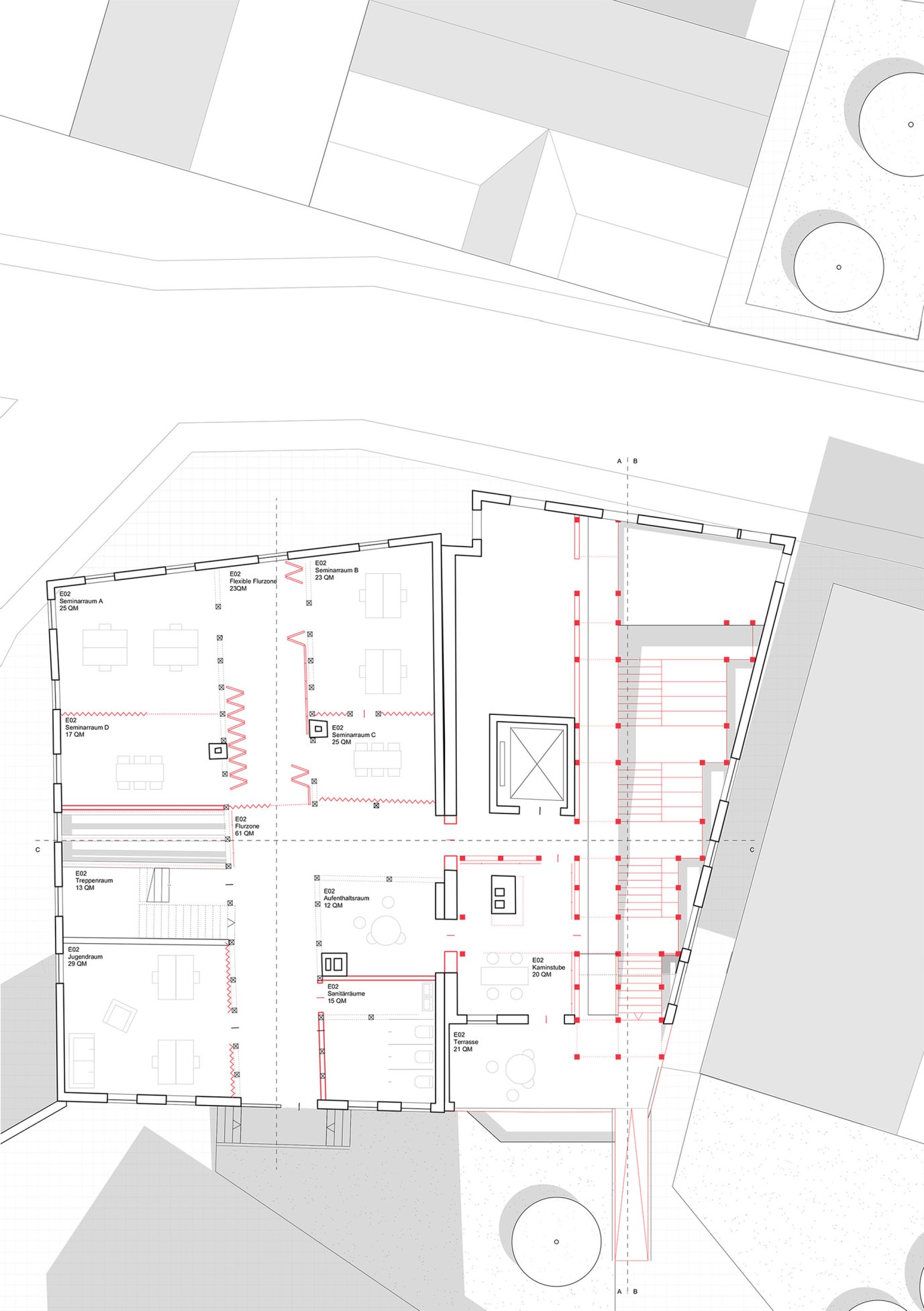
Die Arbeit setzt sich mit dem Thema der Ruine im Kontext des alten Spitals der Kleinstadt Wiesensteig auseinander, einem denkmalgeschützen Fachwerkhaus mit Anbau aus Beton aus den 1970er Jahren, der seit Jahren leer steht. Aus der genauen Beobachtung der Architektur einerseits und den Alltagspraktiken der Menschen vor Ort andererseits wurde ein gemischtes Raumprogramm entwickelt und ein Entwurf abgeleitet, der mit kleinen, klugen Eingriffen überraschende neue Verbindungen und Atmosphären innerhalb des Gebäudes und zwischen den öffentlichen Räumen auf beiden Seiten des Gebäudes schafft.




